Clicca per ingrandire

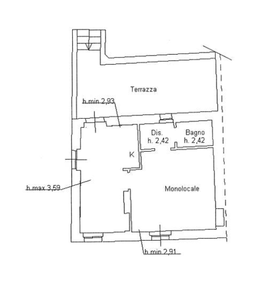
Nur wenige Schritte vom Strand von Procchio entfernt, bieten wir eine elegante Wohnung von etwa 50 qm an, die sich im ersten Stock eines gerade renovierten Zweifamilienhauses befindet. Diese Wohnung ist perfekt für diejenigen, die Komfort und Ruhe suchen, dank der Nähe zu allen Dienstleistungen und zum Meer. Die Wohnung besteht aus einem Wohnzimmer mit Kochnische, einem geräumigen Schlafzimmer und einem Badezimmer. Die Heizung ist autonom mit Klimaanlage, um ein ideales Klima in jeder Saison zu gewährleisten. Von der Wohnung aus kann man außerdem einen Blick auf das Meer genießen. Ein privater Balkon von etwa 20 qm mit Pergola sowie ein privater Parkplatz runden das Angebot ab. Ideal für Investitionen.

ReferenzS1119
TypWohnung
StockwerkEsterstock
Fläche (m2)60
Gartennine
Terrasse/Balkonja
Zimmerzahl1
Zahl der Bäder1
Entfernung vom Meer50 mt
Meeresblickja
Autostellplatz/Garageja
Classe energetica"C Ipe 175 KWh/mqa
[DE] Spese Condominialinine
Klimaanlageja

KONTAKTIEREN SIE DEN AGENTEN


Silvia
Dessì

Immobilienmakler
15 Jahre Erfahrung

Silvia Dessì
Immobilienmakler
15 Jahre Erfahrung

PINNWAND


Centro storico
Cod. M1073

Marina di Campo
Cod. S1126

Periferia
Cod. EG1045

Marina di Campo
Cod. S1137

immobilelba
immobilelba

warten Sie Bitte...