Clicca per ingrandire

Marciana - Procchio (cod. S1129)

Appartamento

115 mq - 3 camere - 2 bagni

euro 480.000,00


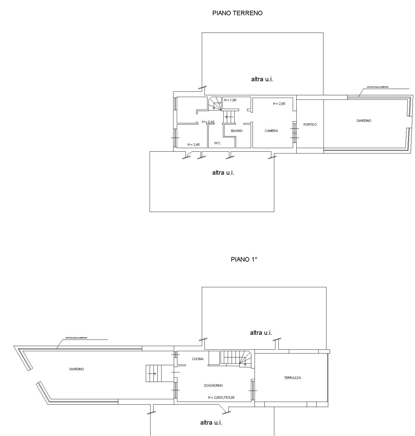
Nella rinomata e prestigiosa cornice di Campo all'Aia, a Procchio, appartamento indipendente facente parte di fabbricato a schiera, dotato di tutte le comodità. L'immobile ha una superficie interna di circa 80mq ed è suddiviso su due livelli e dispone di comodo giardino privato di ingresso con portico, soggiorno con angolo cottura con accesso alla grande terrazza di circa 30 mt con splendida vista sul mare e sui tramonti estivi. Al piano sottostante si trovano due camerine, due bagni, ripostiglio, camera matrimoniale con accesso all'ulteriore giardinetto con portico. Dispone di posto auto privato e l'immobile è in buone condizioni di manutenzione. Ideale per chi desidera la tranquillità e la vicinanza al bellissimo golfo di Procchio.

RiferimentoS1129
TipologiaAppartamento indipendente
PianoTerra e Primo
Superficie(mq)115
Giardinosi
Giardino(mq)400
Terrazzo/Balconesi
N.Camere3
N.Bagni2
Riscaldamentono
Distanza mare400 mt
Vista maresi
Posto auto/boxsi
Classe energetica"E Ipe 175 KWh/mqa
Spese Condominiali900 euro/anno
Aria condizionatano

Contatta l'agente


Silvia
Dessì

Agente immobiliare
15 anni di esperienza

Silvia Dessì
Agente immobiliare
15 anni di esperienza

La tua bacheca


Potrebbe interessarti anche

Periferia
Cod. M1049

Capo d'Arco
Cod. 1602

Procchio
Cod. S1118

Centro storico
Cod. 1637

Facebook Twitter Youtube
  • Via G. Cacciò, 5
  • 57037 Portoferraio (LI) Isola d'Elba
  • P. IVA/C.Fiscale 01082480490
Cerca codice
immobilelba
immobilelba

Attendere...